Appartement huren: niet meer beschikbaar Joep Nicolasstraat in Roermond

  • 86 m2
  • 2 kamers
  • 23 Per direct
  • Onbepaalde tijd
Op deze pagina vind je alle informatie over dit Appartement in Roermond. Als je vragen hebt kun je contact opnemen met de aanbieder.

Het complex "Herenhof" is gelegen midden in het centrum van Roermond, direct aan het Kloosterwandplein. Het complex is zodoende uitstekend gesitueerd, te midden van alle voorzieningen welke het gezellige centrum van Roermond rijk is. Op steenworp afstand bevindt zich het centraal station Roermond en uiteraard het gezellige stationsplein met zijn diverse horecagelegenheden.

Het appartementencomplex "Herenhof" telt in totaliteit 41 royale appartementen. Via de centrale entree aan de Joep Nicolasstraat, alwaar zich de bellentableaus, postkasten en liftopgang bevindt, komt u op de galerijen. Iedere bewoner heeft een eigen, afsluitbare berging in het souterrain. Hier bevindt zich eveneens een gezamenlijke fietsenstalling.

Begane grond:
Centrale entree met intercominstallatie en brievenbussen. Centraal gelegen lift- en trappenhuis.

De indeling is als volgt:

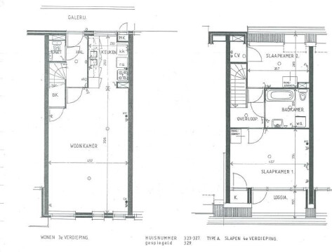
Eerste woonlaag, gelegen op de derde verdieping:
U treedt de woning binnen in de hal, vanwaar u toegang heeft tot het toilet, de woonkamer en eveneens trapopgang naar de bovenverdieping. Het appartement beschikt over een ruime woonkamer (ca. 30 m²) met aangrenzend de half-open keuken. De woonkamer geniet van veel lichtinval door de grote raampartij aan de voorzijde. Het appartement is uitgevoerd met een nette keukenopstelling, zonder verdere apparatuur (m.u.v. afzuigkap).

Tweede woonlaag,
Via de trapopgang komt u uit op de overloop met lichtkoepel. De badkamer is voorzien van een ligbad, vaste wastafel, tweede toilet en wasmachine aansluiting. Het appartement beschikt over twee slaapkamers met respectievelijke oppervlakten van 20 m² en 10 m². Ook bevind zich op deze verdieping het balkon van circa 6m2 welke te bereiken is via de grote slaapkamer.

Huurgegevens:
* Huurprijs: € 795,- per maand
* Servicekosten: €50,- per maand (incl. waterverbruik)
* De waarborgsom bedraagt € 2535,-
* Huurtermijn bedraagt minimaal 24 maanden
* Niet geschikt voor studenten en huurders onder de 25 jaar

Lees meer met een pakket!

Algemene informatie

Stad Roermond
Wijk/buurt: Binnenstad
Inschrijven gemeente: Ja
Opleverniveau: Kaal
Huisgenoten: Geen
Bezichtiging In overleg

Faciliteiten

Eigen badkamer
Eigen keuken
Eigen toilet
Eigen voordeur
Vraag de adverteerder
Vraag de adverteerder
Eigen woonkamer
Tonen op kaart